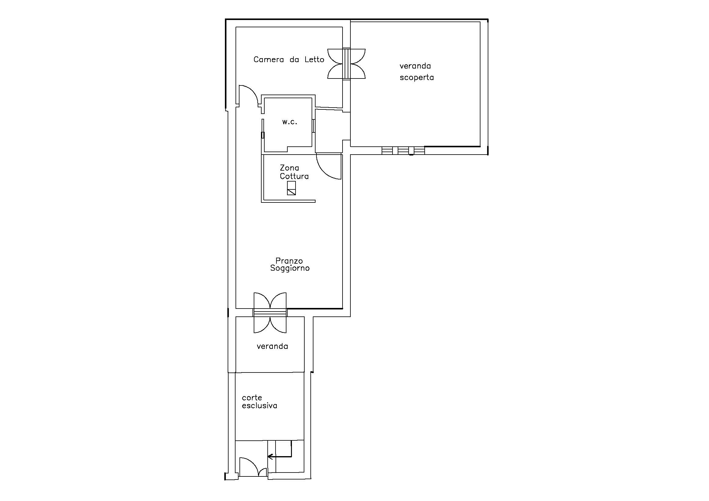
Nautilus, Caretta, Posidonia sono appartamenti bilocali di 40 mq più spazi esterni, posti al piano terra del nostro apart hotel.
Sono composti da camera da letto con sommier alla francese, soggiorno con divano letto a cassetto con doghe in legno, servizio con box doccia 75x75, fornito di set di cortesia, doccia schiuma, sapone per le mani e phon.; dispongono di un climatizzatore autonomo in ciascun ambiente (anche in camera da letto!). Sono dotati di un disimpegno con armadio a muro, cassaforte, ferro e asse da stiro e sono completamente arredati con tavolo, sedie, frigo, bollitore elettrico con set da tè, televisore LCD.
I nostri appartamenti dispongono di un angolo cottura attrezzato di stoviglie per godere della massima autonomia, 2 fuochi ad induzione, forno combinato microonde/grill .
A rendere speciale la sistemazione è il cortile a uso esclusivo arredato con mobili da giardino, perfetto per godere delle belle serate estive.




















